Share

Little Pond Lodge Featured

Gatlinburg, Tennessee
Amenities -
Fireplace Hot Tub Internet Water View
type_icon
Type
Cabin
acco_icon
Accommodation
8 Guests
bedroom_icon
Bedrooms
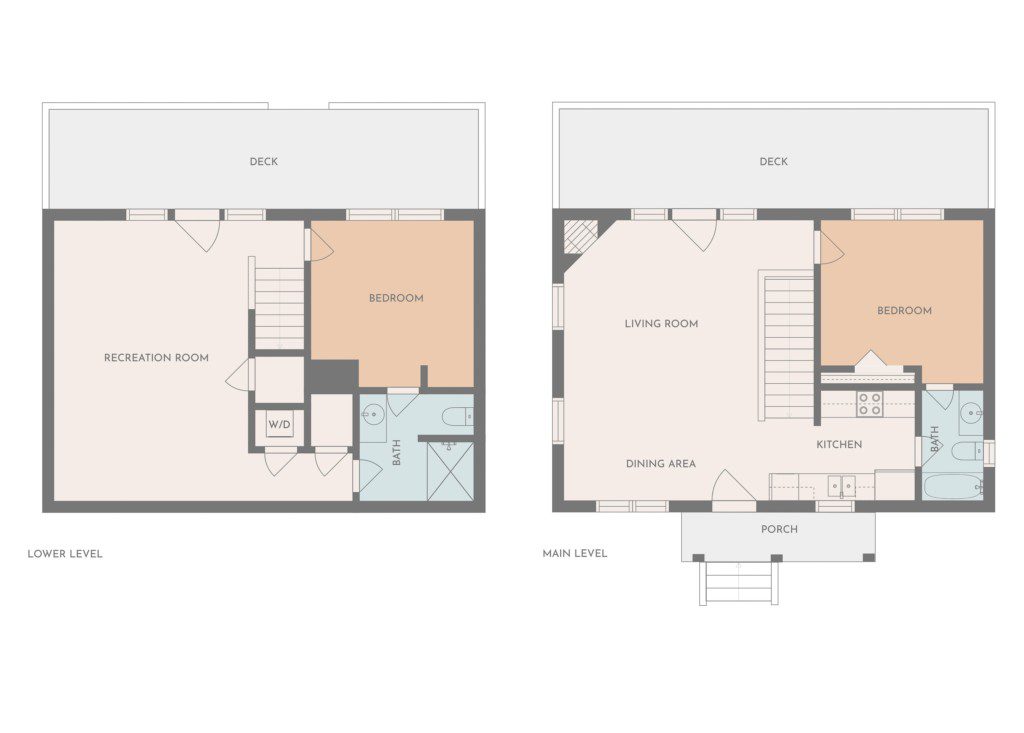
2 Bedrooms / Beds
bathroom_icon
Bathrooms
2 Full

About this listing

Charming Log Cabin Retreat with Private Hot Tub & Peaceful Pond near Gatlinburg!

Welcome to Your Smoky Mountain Getaway

Gather your loved ones and escape to this peaceful cabin retreat — where comfort, nature, and togetherness come first. Nestled beside a quiet pond surrounded by trees, this cozy hideaway offers a relaxing view where nature feels endless. Kids will love watching the ducks by the water, while adults can unwind on the deck or in the hot tub, soaking in the calm of the Smoky Mountains. Perfect for families or friends, it’s a place to slow down, reconnect, and make lasting memories.

🛏️ 2 Comfortable Bedrooms – unwind in two king suites plus a fun full-over-full bunk for kids or extra guests
🛁 2 Private Bathrooms – each bedroom has its own ensuite, featuring a walk-in shower and a relaxing tub/shower combo
🍳 Fully Equipped Kitchen & Coffee Bar – cook, share, and sip together with stainless appliances and all your kitchen essentials
👶 Family-Friendly Touches – plastic dinnerware for little ones, books, and games for quality family time
🍽️ Dining for Everyone – enjoy home-cooked meals and conversation around the spacious dining table
🔥 Cozy Living Room – gather by the warm gas fireplace and stream your favorite shows on the Roku Smart TV
🎮 Fun Game Room – pool table, arcade games, board games, and kids’ toys for hours of entertainment
🌅 Peaceful Outdoor Spaces – two private decks with serene pond views, perfect for morning coffee or evening chats
🫧 Private Hot Tub Retreat – soak under the stars while overlooking the quiet pond below
EV Charger (48 amps) – easy and convenient for electric vehicle guests
📶 Fast Wi-Fi & Cable TV – 400 Mbps internet + 125+ cable channels for streaming, work, or movie nights
🍔 Outdoor Grilling & Dining – charcoal BBQ and deck seating for alfresco meals
🏊 Seasonal Pool Access – take a refreshing dip in the community pool when the weather warms up
🚗 Easy Arrival – flat driveway, no steep mountain roads, and parking for two cars
📍 Close to It All – just a short drive to Gatlinburg, Pigeon Forge, and Great Smoky Mountains National Park

✅ House Rules & Things to Know

We want your stay at Little Pond Lodge to be as smooth and enjoyable as possible. Please take a moment to review our key policies:

• Maximum Guests: 8

• Age Requirement: The primary renter must be 21 or older

• Renter Agreement: A signed rental agreement is required

• Security Deposit: $300, just a holding deposit, will not charge on the card and be released after checkout

• Parties & Events: Not permitted Outdoor camera at entrance for safety

• Please keep doors & windows closed to avoid wildlife entering

• The roads leading to the cabin are easy to navigate with any vehicle, with no steep inclines to worry about.

• Parking is secure and available for up to two cars.

Book Little Pond Lodge today and let the Smoky Mountains bring your family closer together.

 

Book direct and save 10% to 15% on online platform fee.

Check reviews here

Details

  • Guests: 8
  • Bedrooms: 2
  • Bathrooms: 2
  • Check-in From : 04:00 PM
  • Check-out By : 10:00 AM
  • Type: Cabin

Prices

  • per night: $175

Accommodation

icon
Master bedroom 1
1 King Bed
icon
Master bedroom 2
1 King Bed
icon
Game room
1 Bunk Bed

Features

Amenities

  • Air Conditioning
  • Balcony
  • Barbeque Utensils
  • Basic Soaps
  • Bird Watching
  • Blender
  • Body Soap
  • Books
  • Carbon Monoxide Detector
  • Ceiling Fans
  • Cleaning Disinfection
  • Cleaning Products
  • Clothes Dryer
  • Clothing Storage
  • Coffee
  • Coffee Maker
  • Common Surface Disinfectant Cleaned
  • Conditioner
  • Cycling
  • Deck Patio
  • Dishes And Utensils
  • Dishwasher
  • Enhanced Cleaning Practices
  • Extra Pillows And Blankets
  • Family
  • Fire Emergency Contact
  • Fire Extinguisher
  • Fireplace
  • Free Internet
  • Free Parking
  • Free Parking On Premises
  • Freezer
  • Game Room
  • Hair Dryer
  • Hangers
  • Heating
  • Hiking
  • Horseback Riding
  • Hot Tub
  • Hot Water
  • Ice Maker
  • Internet
  • Iron Board
  • Jacuzzi
  • Kettle
  • Kitchen
  • Linens High Temp Wash
  • Linens Provided
  • Living Room
  • Medical Emergency Contact
  • Microwave
  • Museums
  • Outdoor Dining
  • Outdoor Grill
  • Outdoor Lighting
  • Outdoor Seating
  • Outlet Shopping
  • Oven
  • Paper Towels
  • Parking
  • Police Emergency Contact
  • Pool Table
  • Pots And Pans
  • Private Entrance
  • Refrigerator
  • Rice Maker
  • Satellite Cable
  • Shampoo
  • Shower Gel
  • Smart Tv
  • Smoke Detector
  • Stove
  • Television
  • Theme Parks
  • Toaster
  • Toilet Paper
  • Tourist Attractions
  • Towels Provided
  • Video Games
  • Washing Machine
  • Water Parks
  • Water Sports
  • Wifi
  • Wine Glasses
  • Zoo

Map

Terms & rules

  • Smoking allowed: No
  • Pets allowed: No
  • Party allowed: No
  • Children allowed: Yes

Availability

702 Poplar Falls Way Gatlinburg Tennessee 37738 UNITED STATES

Other Listings

[boostly_get_overlay_booking]
Request to book
$175/per night
Search

November 2025

  • M
  • T
  • W
  • T
  • F
  • S
  • S
  • 1
  • 2
  • 3
  • 4
  • 5
  • 6
  • 7
  • 8
  • 9
  • 10
  • 11
  • 12
  • 13
  • 14
  • 15
  • 16
  • 17
  • 18
  • 19
  • 20
  • 21
  • 22
  • 23
  • 24
  • 25
  • 26
  • 27
  • 28
  • 29
  • 30

December 2025

  • M
  • T
  • W
  • T
  • F
  • S
  • S
  • 1
  • 2
  • 3
  • 4
  • 5
  • 6
  • 7
  • 8
  • 9
  • 10
  • 11
  • 12
  • 13
  • 14
  • 15
  • 16
  • 17
  • 18
  • 19
  • 20
  • 21
  • 22
  • 23
  • 24
  • 25
  • 26
  • 27
  • 28
  • 29
  • 30
  • 31
0 Adults
0 Children
Pets
Size
Price
Amenities