Share

Moonlit Meadows Cottage Featured

Sevierville, Tennessee
Amenities -
Fireplace Hot Tub Internet Mountain
Type
Cabin
Accommodation
10 Guests
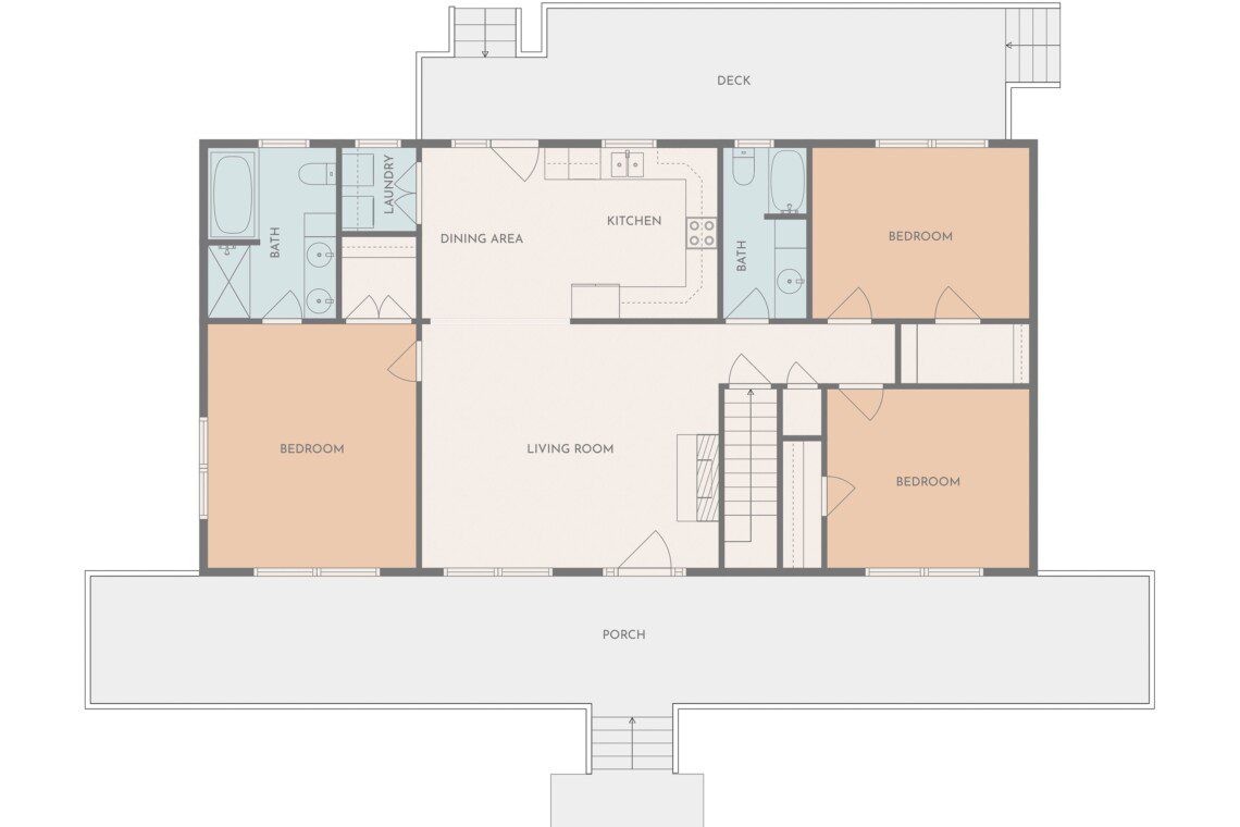
Bedrooms
3 Bedrooms / 6 Beds
Bathrooms
3 Full

About this listing

Cabin Rental in Wears Valley – Moonlit Meadows Family Escape

Looking for a family-friendly cabin rental in Wears Valley? Moonlit Meadows offers the perfect Smoky Mountains retreat for families and groups of up to 10 guests. Nestled between peaceful meadows and the Smoky Mountains, this charming cabin combines modern comfort with outdoor adventure. Enjoy a luxury swim spa, game room, fire pit, and easy access to top attractions like Dollywood, Pigeon Forge, and the Great Smoky Mountains National Park.

Whether you’re planning a multi-generational getaway or a fun group vacation, Moonlit Meadows is designed for comfort, entertainment, and memorable moments in the Smokies.

🌟 Cabin Highlights & Amenities

🔥 Promotion 🔥 Book 5 nights and get a FREE Dollywood one day ticket. Travel date 12/21-12/26 & 12/30-1/4.

• 🛌 3 Comfortable Bedrooms – each with a king bed; plus a twin bunk in the game room & a sleeper sofa for extra guests

• 🛁 3 Full Bathrooms – spa-style master bath with walk-in shower & jetted soaking tub; two additional full baths on main and lower levels for everyone’s comfort

• 🏞️ Ideal Smoky Mountain Setting – nestled in a peaceful, semi-private wooded area with easy paved access (no 4WD required!)

• 💧 Luxury Swim Spa (new 2024) – features hydrotherapy jets & swim resistance; seats up to 9! Enjoy as a warm spa in winter or cool plunge pool in summer—plus fun water fountain features for kids.

• ☕ Kitchen & Coffee Nook – fully stocked with stainless steel appliances and all the essentials for cooking and brewing your morning cup

• 🍴 Spacious Dining Area – gather family here, complete with kid-friendly dishes

• 🔥 Inviting Living Room – gather around the gas fireplace, stream your favorites on the Roku Smart TV, and unwind in cozy style

• 🎯 Entertainment Zone – game room with pool table, classic arcade, foosball, board games, kids’ play area, tent, & pub-style seating with surround sound

• 🌲 Private Outdoor Retreat – multiple decks with seating, charcoal grill, outdoor dining area, and a fire pit surrounded by wooden swings

• ⚡ High-Speed Internet – reliable Wi-Fi for both remote work and streaming fun

• 🛍️ Close to Everything – just minutes from Wears Valley dining, local shops, and Smoky Mountain attractions

• 🚙 Easy Arrival & Parking – paved driveway, no steep climbs, and plenty of parking for multiple vehicles

🌄 Nearby Attractions & Experiences

Enjoy the best of the Smoky Mountains while staying at our cabin rental in Wears Valley:

• Local Eats & Shops → Just a few miles away in Wears Valley

Walker Sisters Place (3.7 mi) → Step back in time at this historic Smoky Mountain homestead

• Wears Cove “Secret Entrance” to GSMNP (4 mi) → Skip the crowds and head straight into the park

Metcalf Bottoms Picnic Area (4.8 mi) → A family favorite for riverside picnics & wading

The Sinks (6.7 mi) → Scenic waterfalls & swimming holes

• Pigeon Forge (8.5 mi) → Dollywood, dinner shows & family fun

Laurel Falls (10 mi) → Easy hike to one of the park’s most popular waterfalls

• Dollywood (13 mi) → World-famous theme park for all ages

Anakeesta & Ripley’s Aquarium (15 mi) → Gatlinburg’s top attractions

• Gatlinburg Parkway (15 mi) → Dining, shopping & mountain-town vibes

Cades Cove (22 mi) → Wildlife viewing, biking & stunning valley drives

Check out our other family-friendly cabins in Wears Valley and Gatlinburg for more options nearby.

🏞 Why Book Moonlit Meadows?

  • Perfect for family vacations and group retreats in the Smoky Mountains
  • Luxury features including a swim spa, a game room, a fire pit, and multiple decks
  • Near top attractions like Dollywood, Pigeon Forge, and GSMNP
  • Direct booking saves 10–15% on online platform fees

✅ House Rules & Things to Know

We want your stay at Moonlit Meadows to be as smooth and enjoyable as possible. Please take a moment to review our key policies:

• Maximum Guests: 10

• Age Requirement: The primary renter must be 21 or older

• Renter Agreement: A signed rental agreement is required

• Security Deposit: $350, just a holding deposit, will not charge on the card, and be released after checkout

• Pets: Up to two small dogs allowed with prior approval & pet fee

• Parties & Events: Not permitted

We truly appreciate your cooperation in following these simple guidelines — they help us keep Moonlit Meadows safe, comfortable, and welcoming for all of our guests!

Traveling with Pets 🐾

We know vacations are even better with your four-legged family members! Moonlit Meadows Cabin welcomes up to two small dogs with prior approval.

If you’d like to bring more than two small dogs, please contact us in advance — we may be able to accommodate for an additional fee.

🔗 Book Now & Save

Book direct and save 10–15% on online platform fees. Make your cabin rental in Wears Valley at Moonlit Meadows an unforgettable getaway. Check reviews here

Details

  • Guests: 10
  • Bedrooms: 3
  • Bathrooms: 3
  • Check-in From : 04:00 PM
  • Check-out By : 10:00 AM
  • Type: Cabin

Prices

  • per night: $180

Accommodation

Master Bedroom
1 King Bed
Bedroom 2
1 King Bed
Bedroom 3
1 King Bed
Game Room
1 Bunk Bed

Features

Amenities

  • Air Conditioning
  • Antiquing
  • Arcade Machine
  • Baking Sheet
  • Balcony
  • Barbeque Utensils
  • Basic Soaps
  • Bird Watching
  • Blender
  • Body Soap
  • Books
  • Ceiling Fans
  • Childrens Books And Toys
  • Childrens Dinnerware
  • Clothes Dryer
  • Clothing Storage
  • Coffee
  • Coffee Maker
  • Conditioner
  • Cycling
  • Deck Patio
  • Desk
  • Desk Chair
  • Dining Table
  • Dishes And Utensils
  • Dishwasher
  • Extra Pillows And Blankets
  • Family
  • Fire Pit
  • Fireplace
  • First Aid Kit
  • Fishing
  • Foosball
  • Free Internet
  • Free Parking
  • Free Parking On Premises
  • Freezer
  • Game Room
  • Games
  • Hair Dryer
  • Hammock
  • Hangers
  • Heating
  • Horseback Riding
  • Hot Tub
  • Hot Water
  • Ice Maker
  • Internet
  • Iron Board
  • Jacuzzi
  • Kettle
  • Kitchen
  • Laptop Friendly
  • Linens Provided
  • Microwave
  • MiniGolf
  • Mountain Biking
  • Outdoor Dining
  • Outdoor Grill
  • Outdoor Seating
  • Outlet Shopping
  • Oven
  • Paper Towels
  • Playroom
  • Pool Table
  • Pots And Pans
  • Private Entrance
  • Private Yard
  • Refrigerator
  • Rice Maker
  • Romantic
  • Shampoo
  • Shopping
  • Shower Gel
  • Smart Tv
  • Stove
  • Television
  • Theme Parks
  • Toaster
  • Toilet Paper
  • Tourist Attractions
  • Towels Provided
  • Toys
  • Washing Machine
  • Water Parks
  • Wifi
  • Wildlife Viewing
  • Wine Glasses

Map

Terms & rules

  • Smoking allowed: No
  • Pets allowed: Yes
  • Party allowed: No
  • Children allowed: No
Additional rules information
Allow 2 small dogs with a pet fee $250

Availability

3355 Clear Valley Drive Sevierville Tennessee 37862 UNITED STATES

Other Listings

[boostly_get_overlay_booking]
Request to book
$180/per night
Search

April 2026

  • M
  • T
  • W
  • T
  • F
  • S
  • S
  • 1
  • 2
  • 3
  • 4
  • 5
  • 6
  • 7
  • 8
  • 9
  • 10
  • 11
  • 12
  • 13
  • 14
  • 15
  • 16
  • 17
  • 18
  • 19
  • 20
  • 21
  • 22
  • 23
  • 24
  • 25
  • 26
  • 27
  • 28
  • 29
  • 30

May 2026

  • M
  • T
  • W
  • T
  • F
  • S
  • S
  • 1
  • 2
  • 3
  • 4
  • 5
  • 6
  • 7
  • 8
  • 9
  • 10
  • 11
  • 12
  • 13
  • 14
  • 15
  • 16
  • 17
  • 18
  • 19
  • 20
  • 21
  • 22
  • 23
  • 24
  • 25
  • 26
  • 27
  • 28
  • 29
  • 30
  • 31
0 Adults
0 Children
Pets
Size
Price
Amenities